
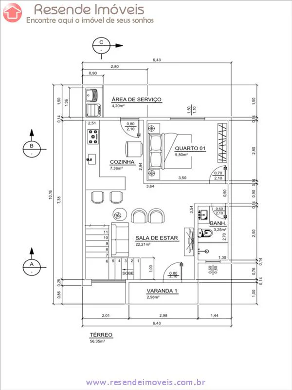
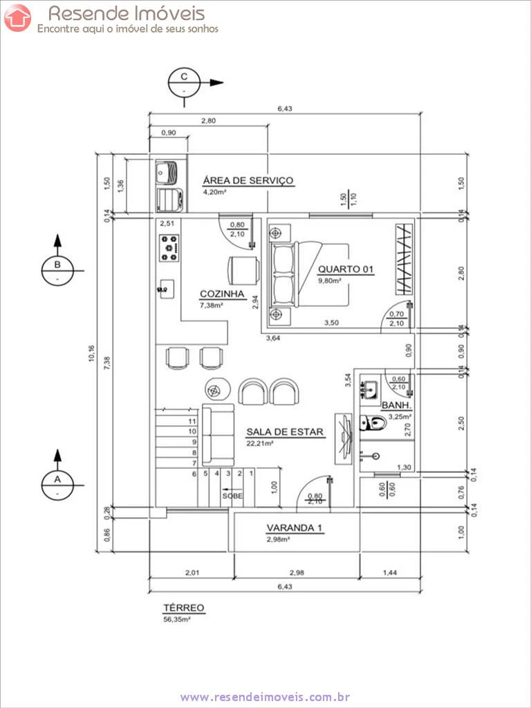
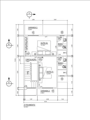
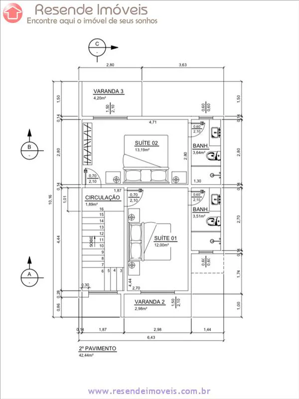
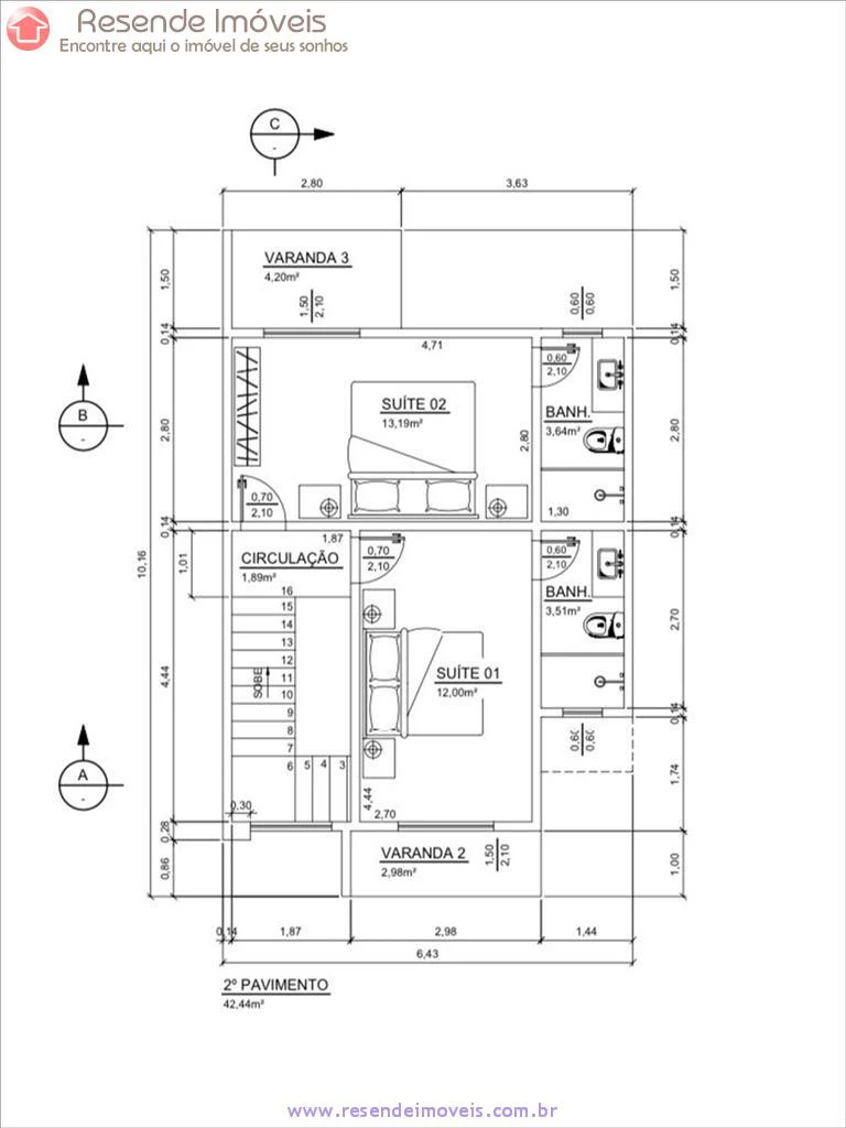
Casa em construção duplex com 03 quartos, sendo 02 suítes (01 quarto no 1º andar), sala ampla, cozinha americana, área de serviço, 02 vagas de garagem, quintal amplo; acabamento de primeira; terreno com 187,5m²; área construída com 100,22m²
Rua João Stagi
Boa Vista II, Resende - RJ
Mas temos outras opções similares que podem te interessar!
Em vez de procurar em vários sites, descreva seu imóvel ideal uma única vez e receba propostas selecionadas diretamente à sua necessidade.
Busca PersonalizadaServiço gratuito e sem compromisso